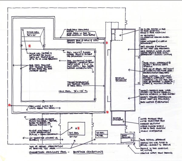
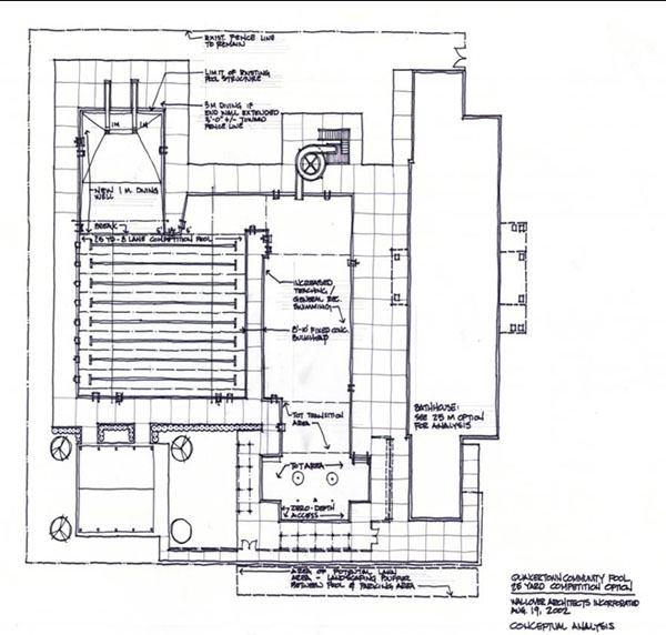
Quakertown Community Pool